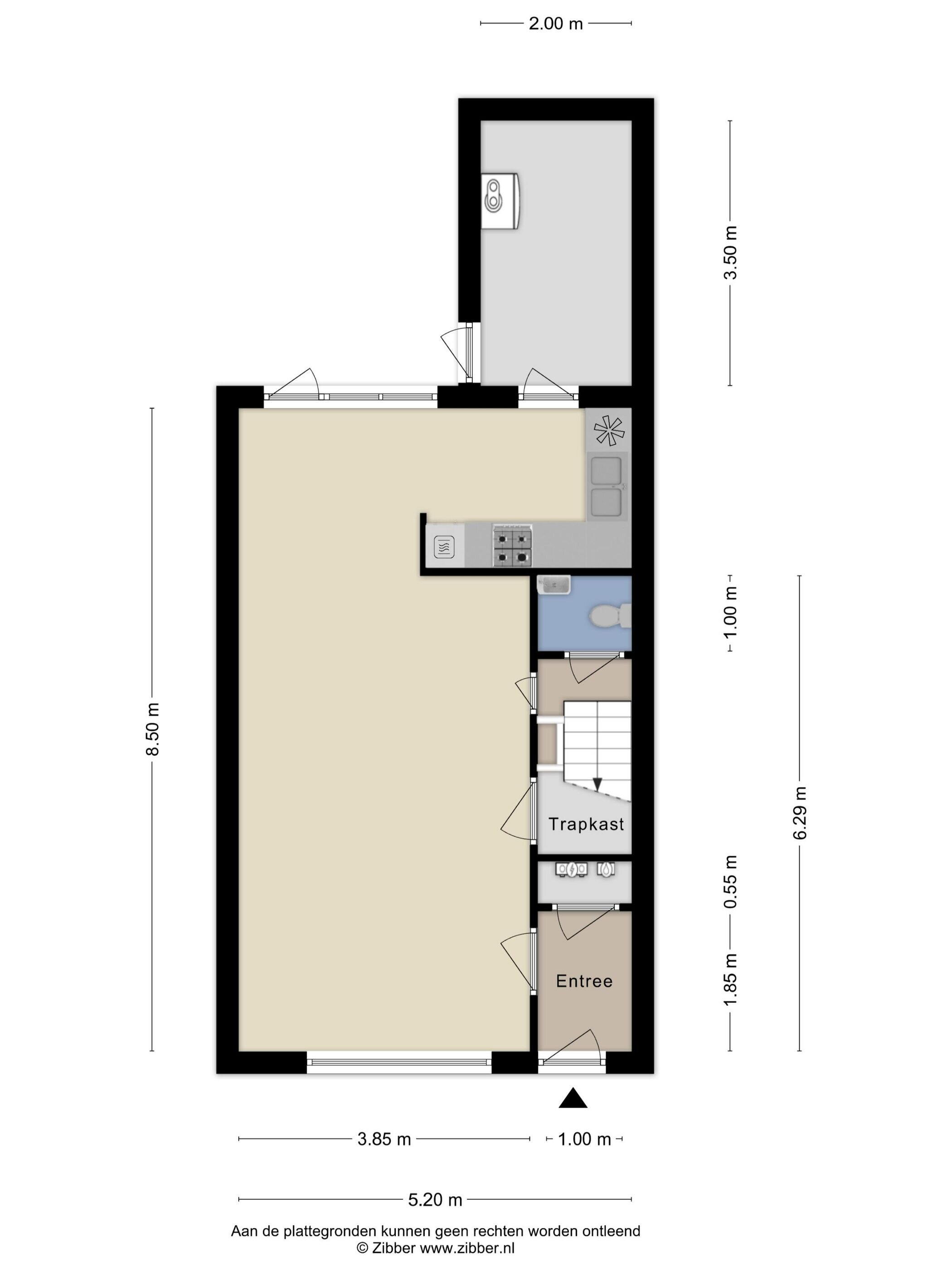
Woonoppervlakte
Circa 95 m²
Perceeloppervlakte
Circa 130 m²
Bouwjaar
Gebouwd in 1983
Aantal kamers
4 kamers (3 slaapkamers)

Silvoldestraat 86

1107 TH, Amsterdam (Noord-Holland)

## HOUSE FOR SALE - ENGLISH BELOW ##

A’dam Good Story presenteert met trots Silvoldestraat 86

Locatie, Locatie, Locatie ... Heerlijk gelegen tussen al het mooie groen van de Gaasperplas, natuurterrein Klarenbeek, de Gaasperzoom en het buitengebied van Weesp en Abcoude.

Unieke kans voor mensen met visie in een buurt zonder hoogbouw, rondom in de fiets- en wandelpaden.

Meldt u aan om de woning te bezichtigen op zaterdag 25 april 2026.

De woning beschikt over de volgende bijzonderheden, te weten;

• Eengezinswoning met hout elementen,

• 96m2 woongenot met voor- en ruime achtertuin,

• 2 woonlagen met 3 slaapkamers,

• Vrij uitzicht aan de voorzijde en geen verkeer!

• Centraal parkeren op het parkeerterrein aan de zijkant van de woning,

• Op fietsafstand van metrohalte Reigersbos met het gelijknamige winkelcentrum,

• (Kind)vriendelijke buurt,

• Geheel naar eigen smaak in te richten,

• Erfpacht afgekocht tot oktober 2047

• Energielabel A,

• Niet-zelf-bewoningsclausule en ouderdomsclausule van toepassing,

• Notariskeuze aan koper mits in Amsterdam.

Binnenkomen in deze woning is thuiskomen.

Overzichtelijk, zonnig en uitnodigend zijn zomaar wat termen die je te binnen schieten wanneer je de woning binnenkomt.

Eind jaren tachtig gebouwd om binnen bereik van de stad te wonen met het gevoel van het buitenleven.

Riant verdeeld over TWEE woonlagen, dat biedt veel mogelijkheden!

Een heerlijke woonkamer met half open keuken en een ruime bijkeuken. Drie ruime slaapkamers op de eerste verdieping en een overzichtelijke badkamer.

Bij het inrijden van de wijk ervaart u de rust terwijl u zo in het centrum van Amsterdam bent. De EENGEZINSWONING die u betreedt is licht en overzichtelijk met fijne buren.

I N D E L I N G

Bij binnenkomst in de woning hangt u uw jas op en loopt u door naar de woonkamer. Even snel de boodschappen wegzetten in de keuken en wat te drinken nemen. De huiskamer en tuin zijn uitnodigend.

Het zal u opvallen dat het licht u tegemoet komt via de grote ramen aan de voor- en achterzijde van de woning.

De achtertuin is groot, met ruimte voor een hobby of een fraai aangelegde tuin.

De kinderen kunnen hier in alle rust hun energie kwijt en u zult er veel tijd doorbrengen met vrienden en kennissen.

Heerlijk is ook de voortuin welke uitkijkt over het groene plantsoen.

Via de hal gaat u met de trap naar boven. De ruime master bedroom ligt aan de voorkant, terwijl de twee andere kamers zich aan de achterkant bevinden. De badkamer is eenvoudig doch praktisch ingericht.

Van lekker ontbijten en lunchen tot het diner geniet u van uw privacy met vrienden en kennissen.

L I G G I N G

Deze woning ligt in de wijk Reigersbos, direct aan de grens met de provincie Utrecht. Aan de andere kant het levendige winkelcentrum met horeca, supermarkten en alles wat u nodig heeft.

Het Arena gebied ligt op fietsafstand, hier komt Nederland samen voor de Johan Cruijff ArenA, de Ziggo Dome, Pathé ArenA en het Afas Live theater. Kortom, genoeg uitgaansmogelijkheden.

Het Station Bijlmer ArenA verbindt je met de rest van Nederland, binnen 17 minuten op Amsterdam Centraal Station en met 20 minuten op Utrecht Centraal.

De A1, A2, A9 en A10 zijn uw directe uitvalswegen, en met de fiets zit u zo in de prachtige natuur.

Mocht dit nog niet genoeg zijn, dan heeft u legio mogelijkheden om te recreëren. Het Nelson Mandelapark met de atletiekbanen, voetbal-, hockeyvelden, het skatepark en de gigantische speeltuin voor kinderen.

Zoek ook gerust het Diemerbos op of de Gaasperplas waar u kunt surfen/zeilen, lekker frisbeeën en barbecueën, laat de zomer maar komen!

C O N C L U S I E

Kortom, u heeft de ruimte van buiten wonen en toch in de stad, want met de fiets bent u in 40 minuten op het Museumplein of u neemt gewoon de metro!

P O T E N T I E E L

Met simpele ingrepen verbetert u de woning snel.

Bouwt u uit of op?

Een nieuwe keuken er in en de kleur aanpassen aan uw wensen.

Kom genieten van de zomer!

I N T E R E S S E

Bel dan A’dam Good Story voor een bezichtiging 06-40340437

Bij A’dam Good Story hebben wij het vermogen de juiste scène te creeeren voor de aan- en verkoop van uw woning. Onze Antroposofische makelaar zet uw woning in het juiste licht met behulp van natuurlijke styling, professionele fotografie en een meeslepende tekst. Onze bezichtigingen zijn een unieke beleving begeleid met de juiste catering en sfeervolle muziek.

Deze informatie is door ons met zorgvuldigheid samengesteld. Onzerzijds wordt echter geen enkele aansprakelijkheid aanvaard voor enige onvolledigheid, onjuistheid of anderszins, dan wel de gevolgen daarvan.

## ENGLISH TEXT ##

A’dam Good Story proudly presents Silvoldestraat 86

Location, Location, Location... Beautifully situated amidst the lush greenery of the Gaasperplas, the Klarenbeek nature reserve, the Gaasperzoom, and the countryside around Weesp and Abcoude.

A unique opportunity for forward-thinking individuals in a neighborhood free of high-rise buildings, surrounded by bike and walking paths.

Sign up to view the property on Saturday, April 25, 2026.

The property features the following highlights, namely:

• Single-family home with wood accents,

• 96 m² of living space with a front yard and spacious backyard,

• 2 stories with 3 bedrooms,

• Unobstructed view at the front and no traffic!

• Central parking in the parking lot on the side of the house,

• Within biking distance of the Reigersbos metro stop and the shopping center of the same name,

• (Child) friendly neighborhood,

• Can be decorated entirely to your own taste,

• Ground lease bought out until October 2047

• Energy label A,

• Non-owner-occupancy clause and age clause apply,

• Buyer may choose the notary, provided they are based in Amsterdam.

Spacious, sunny, and inviting are just a few of the words that come to mind when you step inside the home.

Built in the late 1980s to offer city living with the feel of the outdoors.

Spacious and spread over TWO floors, offering plenty of possibilities!

A lovely living room with a semi-open kitchen and a spacious utility room. Three spacious bedrooms on the first floor and a well-organized bathroom.

As you drive into the neighborhood, you’ll experience the tranquility while still being just a short drive from the center of Amsterdam. The SINGLE-FAMILY HOME you’re entering is bright and well-organized, with friendly neighbors.

L A Y O U T

Upon entering the home, you hang up your coat and walk through to the living room. Quickly put away the groceries in the kitchen and grab a drink. The living room and garden are inviting.

You’ll notice the light streaming in through the large windows at the front and back of the house.

The backyard is spacious, with room for a hobby or a beautifully landscaped garden.

The children can burn off their energy here in peace, and you’ll spend plenty of time there with friends and acquaintances.

The front yard, which overlooks the green park, is also delightful.

From the entryway, you take the stairs upstairs. The spacious master bedroom is at the front, while the two other bedrooms are at the back. The bathroom is simply yet practically furnished.

From a nice breakfast and lunch to dinner, you’ll enjoy your privacy with friends and family.

LOCATION

This home is located in the Reigersbos neighborhood, right on the border with the province of Utrecht. Just across the way is a lively shopping center with restaurants, supermarkets, and everything you need.

The Arena area is within cycling distance; this is where the Netherlands comes together for the Johan Cruijff ArenA, the Ziggo Dome, Pathé ArenA, and the Afas Live theater. In short, plenty of entertainment options.

Bijlmer ArenA Station connects you to the rest of the Netherlands, with Amsterdam Central Station just 17 minutes away and Utrecht Central Station 20 minutes away.

The A1, A2, A9, and A10 are your direct highways, and by bike, you’ll be in the beautiful countryside in no time.

If that’s not enough, there are countless recreational options. The Nelson Mandela Park features track and field facilities, soccer and hockey fields, a skate park, and a massive playground for children.

Feel free to visit the Diemerbos or the Gaasperplas, where you can surf/sail, play Frisbee, and barbecue—bring on the summer!

C O N C L U S I O N

In short, you have the space of living in the countryside while still being in the city, because you can reach Museumplein in 40 minutes by bike or simply take the metro!

P O T E N T I A L

With simple renovations, you can quickly improve the home.

Are you planning to expand or add a story?

Install a new kitchen and customize the color to your liking.

Come enjoy the summer!

I N T E R E S T

Call A’dam Good Story to schedule a viewing at 06-40340437

At A’dam Good Story, we have the ability to create the perfect setting for the sale or purchase of your home. Our anthroposophical real estate agent showcases your home in the best possible light using natural styling, professional photography, and compelling copy. Our viewings are a unique experience accompanied by the right catering and atmospheric music.

This information has been compiled by us with care. However, we accept no liability whatsoever for any incompleteness, inaccuracy, or other errors, or for the consequences thereof. Lees de volledige omschrijving

Plattegronden

Overdracht

Vraagprijs
€ 385.000 k.k.
Status
Beschikbaar
Aanvaarding
In overleg

Bouw

Object type
Eengezinswoning, tussenwoning (hofjeswoning)
Soort bouw
Bestaande bouw
Bouwjaar
1983
Soort dak
Plat dak bedekt met bitumineuze dakbedekking

Oppervlakte en inhoud

Woonoppervlakte
95 m²
Perceeloppervlakte
130 m²
Inhoud
238 m³
Externe bergruimte
6 m²
Gebouwgeb. buitenruimte
70 m²

Indeling

Aantal kamers
4 kamers (3 slaapkamers)
Aantal badkamers
1 badkamer
Badkamervoorzieningen
Inloopdouche, toilet, en wastafelmeubel
Aantal woonlagen
2 woonlagen
Voorzieningen
Buitenzonwering, natuurlijke ventilatie, en TV kabel

Energie

Energielabel
A
Verwarming
Cv-ketel
Warm water
Cv-ketel
Cv ketel
Gas gestookt uit 2010, eigendom

Buitenruimte

Ligging
Aan bosrand, aan park, aan rustige weg, aan water, in woonwijk, open ligging en vrij uitzicht
Tuin
Achtertuin en voortuin
Afmetingen achtertuin
41 m² (7,50 meter diep en 5,50 meter breed)
ligging tuin
Gelegen op het oosten en bereikbaar via achterom

Bergruimte

Schuur / berging
Vrijstaande houten berging
Voorzieningen
Elektra

Parkeergelegenheid

Soort parkeergelegenheid
Betaald parkeren, openbaar parkeren en parkeervergunningen

Energieverbruik in Amsterdam

Energielabel deze woning

Energielabel A

Publicatie energielabel:

Stroomverbruik per jaar

3400 kWh

(Gemiddelde tussenwoning in Amsterdam)

Gasverbruik per jaar

1690 m³

(Gemiddelde tussenwoning in Amsterdam)

* Cijfers zijn afkomstig van het CBS en bedoeld als indicatie en kunnen verschillen voor deze woning

Indicatie hypotheeklasten

Eigen inleg:
Spaargeld / overwaarde

Rente:
Laagste 10-jaars rente

Laagste 10-jaars rente

2,78% - Centraal Beheer - NHG


3,04% - Centraal Beheer - 80%

Laagste 20-jaars rente

3,29% - Centraal Beheer - NHG


3,52% - Centraal Beheer - 80%

Laagste 30-jaars rente

3,41% - Centraal Beheer - NHG


3,7% - Argenta - 80%


Hypotheek:

Bruto maandlasten: € 0 p/m

Netto maandlasten: € 0 p/m

Hoe berekenen we dit?

Het rentepercentage is gebaseerd op de laagste 10 jaars vaste rente voor één hypotheekdeel. De vermelde rente (2.78% met NHG) is gecontroleerd op 21-04-2026. Deze berekening is gebaseerd op een annuïteitenhypotheek die volledig wordt afgelost, waarbij de maandlasten gedurende de gehele looptijd gelijk blijven. De werkelijke rente en netto maandlasten kunnen variëren, afhankelijk van uw persoonlijke situatie en de hypotheekverstrekker. Raadpleeg een financieel adviseur voor een nauwkeurige berekening en advies. Aan deze berekening kunnen geen rechten worden ontleend; het dient enkel als indicatie.

Documentatie

Zonnegrenzen bekijken

Inwoners in Amsterdam

Cijfers voor postcodegebied 1107

Totaal aantal inwoners
11630 inwoners
Mannen
49%
Vrouwen
51%

Inwoners in Amsterdam

Cijfers voor postcodegebied 1107

tot 15 jaar
15%
15 tot 25 jaar
12%
25 tot 35 jaar
29%
45 tot 65 jaar
28%
65 en ouder
16%

Huishoudens in Amsterdam

Cijfers voor postcodegebied 1107

Eenpersoons zonder kinderen
50%
Meerpersoons zonder kinderen
18%
Huishoudens zonder kinderen
68%

Huishoudens in Amsterdam

Cijfers voor postcodegebied 1107

Huishoudens met één kind
16%
Huishoudens met meerdere kinderen
16%
Huishoudens met kinderen
32%

Woningen in Amsterdam

Cijfers voor postcodegebied 1107

Woningen voor 1945
1%
Woningen tussen 1945 en 1965
1%
Woningen tussen 1965 en 1975
1%
Woningen tussen 1975 en 1985
68%
Woningen tussen 1985 en 1995
31%

Woningen in Amsterdam

Cijfers voor postcodegebied 1107

Woningen tussen 1995 en 2005
1%
Woningen tussen 2005 en 2015
1%
Woningen na 2015
1%
Huurwoningen
70%
Koopwoningen
30%

Overige in Amsterdam

Cijfers voor postcodegebied 1107

Gemiddelde WOZ waarde
€ 246.000,-
Personen onder de 65 met uitkering
13%

Overige in Amsterdam

Cijfers voor postcodegebied 1107

Adressen per km²
2291
Stedelijkheid (schaal 1 op 5)
80%
Postcode kaart 1107 Gemeente kaart amsterdam

Korte feiten over Amsterdam

Amsterdam is de hoofdstad van Nederland. De stad, in het Amsterdams ook Mokum genoemd (afkomstig uit het Jiddisch), ligt in de provincie Noord-Holland, aan het IJ, het Noordzeekanaal en de monding van de Amstel. De stad ligt in de gelijknamige gemeente Amsterdam en heeft 873.338 inwoners (1 januari 2021), Groot-Amsterdam telt 1.459.402 inwoners.

A'dam Good Story.com

Indien u vragen heeft of u wilt een bezichtiging inplannen, dan kunt u gebruik maken van het formulier hiernaast. Er zal daarna op korte termijn contact met u worden opgenomen.

Claus van Amsbergstraat 38

1102AZ, Amsterdam

06 - 4034 0437 amsterdam@adamgoodstory.com www.adamgoodstory.com

A'dam Good Story

Bij A'dam Good Story zorgen wij voor de perfecte setting bij de aan- en verkoop van uw woning. Onze antroposofische makelaar presenteert uw huis op zijn best met natuurlijke styling, hoogwaardige fotografie en een pakkende beschrijving. Bezichtigingen worden een bijzondere ervaring, compleet met sfeervolle muziek en zorgvuldig geselecteerde catering.
A'dam Good Story
Reviews A'dam Good Story.com

Silvoldestraat 86, Amsterdam

€ 385.000 k.k. - Beschikbaar